In Berlin-Schöneberg, opposite the district court, a new architectural haven of peace is being created: the CASON Ensemble. With its impressive seven-storey Corner House and a secluded six-storey Garden House, it lives up to its name. The Spanish word “cason” means “large house”, in contrast to the smaller casa.
The ensemble forms the intersection of three exciting neighborhoods: the famous Winterfeldtkiez around the street of the same name, the lively Akazienkiez full of high street shops, cafés and restaurants, and one of the capital’s most popular residential areas, the elegant Bavarian Quarter. Here you can stroll along beautiful old buildings and browse through the numerous bookshops to Viktoria-Luise Platz, which is a listed building. Would you prefer a short walk to the lake in Rudolph-Wilde-Park at Schöneberg town hall? Or to the KaDeWe for errands? It’s just over a 10 minutes walk from CASON … and a few steps further on you’ll find Ku’Damm and Bikini Berlin.
C/O Berlin
Zoo Palace
Bikini Berlin
KaDeWe
Victoria Bar
Sissi & Belle floor
Café Komine
Winterfeldt market
Giuseppetti coffee
Wine & Glass Company
Taverna Ousia
The sweet life
Macaroon Manufactory
Apple Gallery Schöneberg
Hilaneh von Kories Gallery
Aux Plaisirs Patisserie

The finest materials create an atmosphere of homely elegance - and the clear design language gives you plenty of scope for your own personal touch.
Modern architecture is an architecture of diversity. Because it can be inspired by the styles and masterpieces of all past epochs. Thus the CASON ensemble with its neoclassical appearance confidently invokes central elements of Renaissance architecture: harmonious proportions, the emphasis on horizontal lines through cornices and the skilful use of round arches.
However, the refined restraint of the decorative elements, materials and many sophisticated details are unmistakably contemporary. They ensure an uncompromisingly high standard of living. For example, all the windows – despite their historical appearance – are floor-to-ceiling. This creates a particularly bright ambience, in combination with the sun moving around the CASON. It is further intensified by the by the 2.70 metre high ceilings on the upper floors.
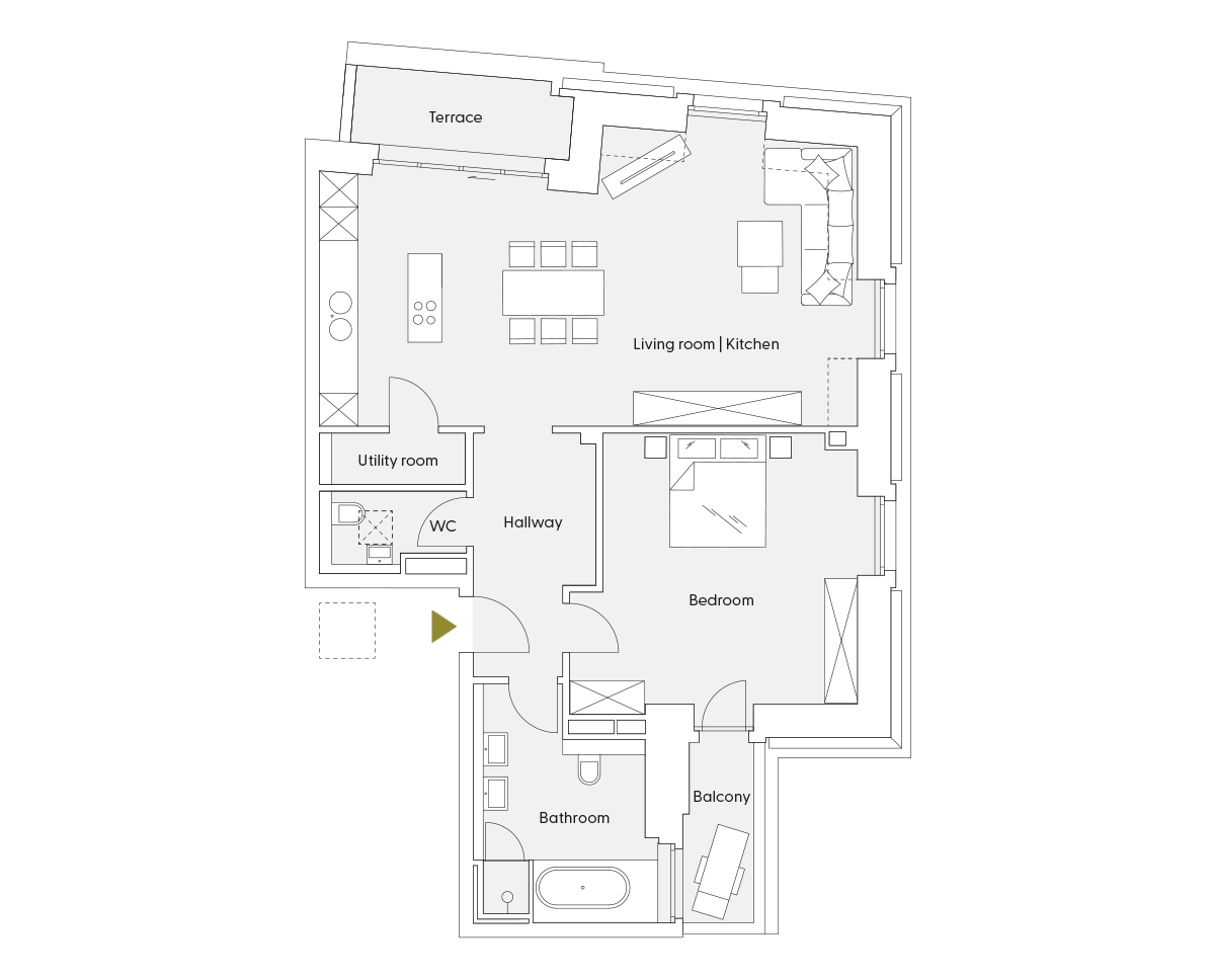
– 33 high-quality condominiums for sale
– commission-free
– 1 – 3 rooms
– 34 – 109 m²
– 168 m² penthouse maisonette apartment with 5 – 6 rooms
– terraces, balconies, conservatories
– 7 underground parking spaces
– 1 – 3 commercial spaces (237 m² in total)

Floor-to-ceiling lattice windows and real wood herringbone parquet floors create a contemporary ambience with classic accents. But the features of the CASON go beyond what is visible at first glance . Underfloor heating runs under the parquet flooring, which ensures a particularly comfortable living climate in the cooler months. The windows - or more precisely: their insulating glass also contribute to this. It not only keeps out the cold and heat, but also the few street noises that still reach the shielded inner courtyard. So you will always find cosy peace and quiet at home.
In all the interior rooms of the CASON meticulous attention has been paid to a beautifully designed, high-quality interior harmonising with all furnishing styles. From the real wood parquet flooring to the door fittings, from the porcelain stoneware tiles combined with shelves and window sills made of natural stone to the fittings and bathroom ceramics from renowned brands, you will want for nothing here, even with the highest demands.





Exclusive residential and commercial space
Get an insight into the CASON ensemble in the photo gallery
1 room
34.35 m
1 room
37.06 m
2 rooms
77.47 m
2 rooms
89.32 m
2 rooms
73.69 m
2 rooms
83.29 m
2 rooms
108.90 m
2 rooms
74.66 m
3 rooms
79.17 m
3 rooms
79.10 m
3 Zimmer
108,90 m
3 rooms
115.38 m
3 rooms
98.98 m
3 rooms
94.20 m
3 rooms
94.20 m
3 rooms
94.20 m
Penthouse
lower level,
total 6 rooms
168.43 m
Penthouse
upper level
You can view the flats in person on the following Saturdays between 11:00 a.m. and 2:00 p.m.:
07.03.
21.03.
11.04.
25.04.
09.05.
Please ring the bell at the show apartment – you do not need an appointment.
Reserve now
Save real estate transfer tax
Unique – and only until the end of 2024:
Reserve your dream apartment with us and we will pay the 6% real estate transfer tax due on the purchase!
The special only applies to the apartments in the garden house and the 2-room apartments and penthouses in the corner building.
If you are interested, please contact us at Tel. +49 30 20 45 87 222 or by e-mail to verkauf@radiusb.de
We look forward to seeing you!
You are currently viewing a placeholder content from Vimeo. To access the actual content, click the button below. Please note that doing so will share data with third-party providers.
More InformationYou are currently viewing a placeholder content from YouTube. To access the actual content, click the button below. Please note that doing so will share data with third-party providers.
More InformationYou need to load content from reCAPTCHA to submit the form. Please note that doing so will share data with third-party providers.
More Information